для устройства буронабивных свай буровыми станками Bauer, Kato, Junttan, Liebherr, Casagrande, Soilmec, БМ

Инвентарные обсадные трубы применяются для устройства буронабивных свай буровыми станками Bauer, Kato, Junttan, Liebherr, Casagrande, Soilmec, БМ. Трубы обеспечивают предохранение стенок скважины от обрушения и плывунных грунтов, позволяют контролировать параметры скважины, обеспечивают высокое качество заполнения скважины бетоном.
Обсадные трубы и принадлежности производятся на заводе АО «СтальМост» в г. Ярославле по оригинальным чертежам и технологии немецкой фирмы Bauer по ТУ 35-1472-98. Контроль качества проводится по разработанному совместно с фирмой Bauer регламенту.
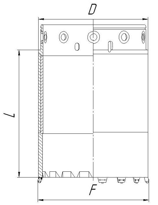
Размеры стандартных обсадных труб указаны в таблице. По требованию заказчика возможно изготовление труб отличных от стандартных.
Фланцевое соединение обсадных труб обеспечивает передачу крутящего момента и осевых нагрузок от буровой машины на колонну обсадных труб при бурении. Стыковка обсадных труб осуществляется за счет резьбовых соединений -пробка-втулка резьбовая-втулка конусная, конус пробки плотно входит во втулку конусную. Втулки запрессованы в отверстия фланцев и приварены — 4 шва по 50мм. Дюймовая резьба Витворта на каждой пробке и втулке конусной при изготовлении контролируется калибрами. Совпадение отверстий обеспечивается точностью деления (±20″) при расточке отверстий во фланцах. Фланцы взаимозаменяемы.
Материал фланцев — сталь с пределом прочности 800-1000N/mm². Оригинальная технология и конструкция фланцев позволяют выдерживать жесткие допуски по торцевому биению фланца относительно оси трубы.

Для обеспечения водонепроницаемости соединения устанавливаются кольца уплотнительные (поз.4) под каждую пробку и и шнур уплотнительный (поз.7) в проточку фланца «М».
1.Фланец «Д»
2.Фланец «М»
3.Пробка
4.Кольцо
5.Втулка резьбовая
6.Втулка конусная
7.Шнур
8.Ключ



Коронки буровые применяются при буровых работах в тяжелых грунтах: твердые и полутвердые глины и суглинки, скальные, гравийные, галечниковые, известняк, а также в бетоне при устройстве буросекущих свай. По конструкции выпускаются: короткие и удлиненные.
По типу режущего зуба: привариваемый -типа BR и с механическим креплением- типа WS. Оба типа оснащены вставками из твердого сплава.
Зубья устанавливаются на торец коронки с переменным уклоном и выступают за пределы наружного диаметра обсадной трубы, что позволяет уменьшить усилия извлечения обсадных труб.

Переходник обеспечивает связь между вращателем и обсадными трубами и таким образом соответствует их диаметрам. Соединение переходника с обсадными трубами осуществляется при помощи «пальцев». Количество «пальцев» в зависимости от диаметра обсадной трубы может быть 2 или 4.
Заводом выпускаются переходники для буровых установок производства Bauer, Casagrande, LIEBHERR, Junttan, Soilmec, Kato, БМ и другие.
BAUER

